Point Lonsdale I Beach House




Point Lonsdale Beach House 

Set within the Victorian coastal town of Point Lonsdale, this house is a contemporary take on the quintessential beach home. Wrapped in Australian blackbutt, the building settles in with its landscape, weathering naturally alongside the coast. 

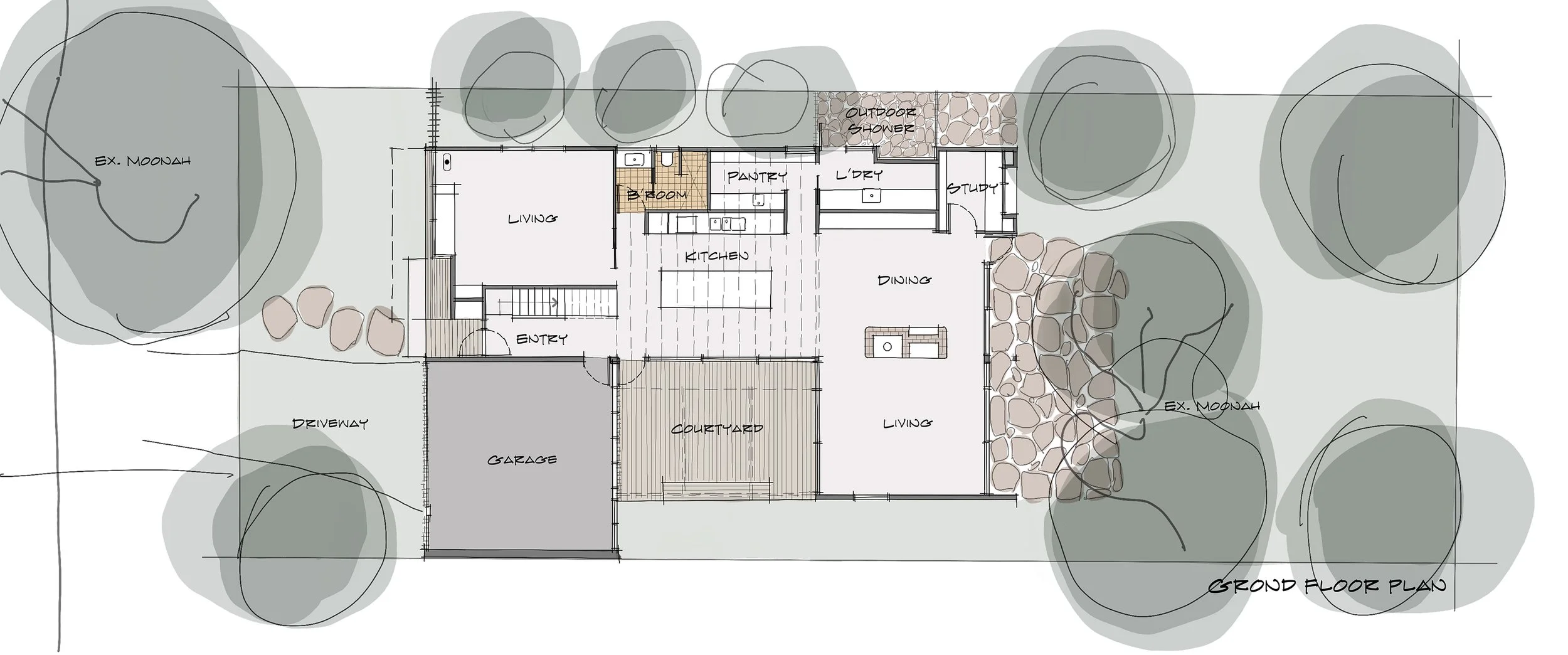
The house is carefully sited to retain two mature Moonah trees, an important and much-loved part of the local environment. From the street, the house presents as two storeys. Overall, a singular raking roofline subtly resolves into a single-storey scale, towards the north facing rear yard, creating a more intimate relationship with the garden and outdoor living spaces. 

The house is designed around a central courtyard, ensuring all the primary living spaces strongly connect with the garden,  providing abundant natural light and passive solar gain. 

Built initially as a beach house, the home was always intended to evolve into a permanent family residence. This long-term view informed the planning, material choices and durability of the house, balancing relaxed coastal living with the robustness required for everyday family life.

Inside, the roof form continues as a raking timber ceiling, bringing warmth, texture and a sense of generosity to the main living spaces. The interiors reflect a client unafraid of colour, where layered materials and thoughtful details create a relaxed, lived-in feel rather than a precious one.

This is a house designed for ease: coastal, warm and robust, with spaces that support both weekend escapes and a future of full-time living, genuinely connected to place.

 

Architect _ Farnan Findlay Architects
Structural & Civil Engineers _ Simon Anderson Consultants 
Builder _ Jardine Homes 

Photography_Ed Sloane